Ubicado estratégicamente en el valle de Tumbaco, cercano a la ciudad, sin sacrificar la tranquilidad y belleza del entorno natural en el que se encuentra. El beneficio de vivir en un lugar donde se puede disfruar de la naturaleza sin renunciar a la conveniencia de tener accesibilidad a la vida urbana. Vivir cerca de todo.





La ubicación de los proyectos de MARM CIVIL CONSTRUCTORA se caracterizan por un entorno de seguridad y tranquilidad cercano a las actividades cotidianas que desarrolla una familia ecuatoriana.
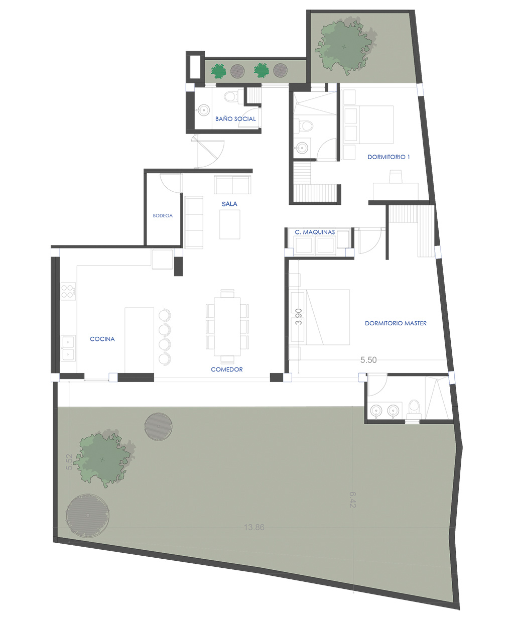
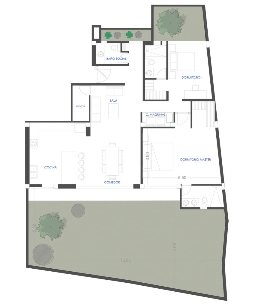
Pinea se construye en una urbanización privada en el Pasaje Espinoza y Calle José Vinueza, sector La Morita – Tumbaco (300m Ruta Viva).
